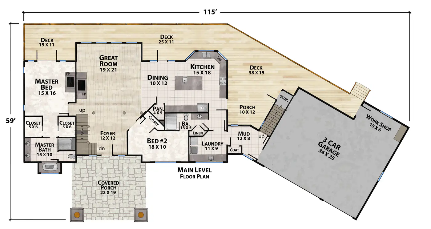
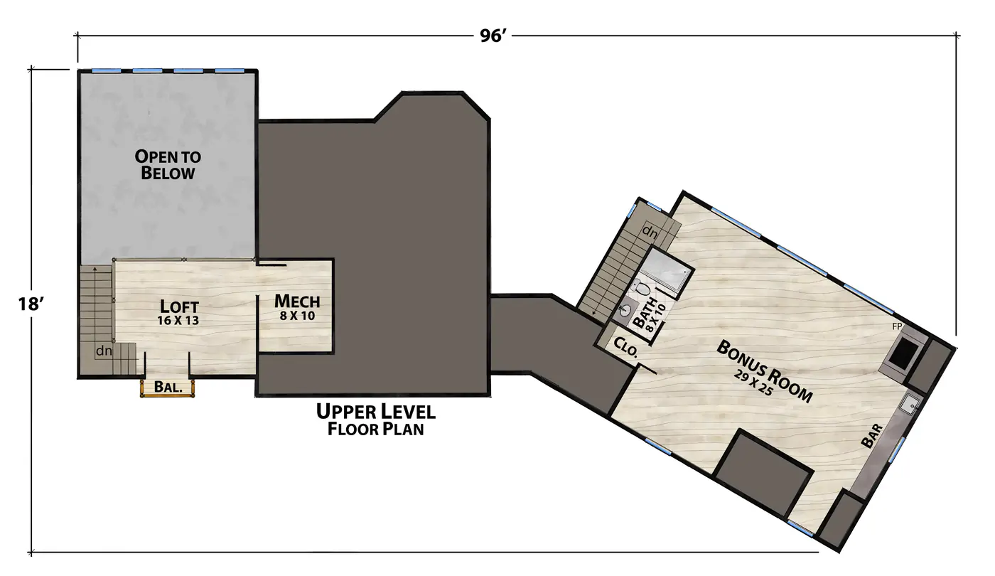
Rock Ride Ranch

Specifications

Bedrooms: 4

Bathrooms: 4

Main Level SF: 2127

Upper Level SF: 285

Lower Level SF: 1780

Garage SF: 989

Total SF: 5181

Floor Plans

Main Level

Lower Level

Upper Level